Please always observe the safety and installation information for your product. You find these details within the assembly instructions.
Scope of supply
sink combi
diamond drill
cutting template
mounting material
assembly instruction
Article features
consists of: built-in sink, 2-hole single lever kitchen mixer, control unit, hose box, automatic waste and overflow set
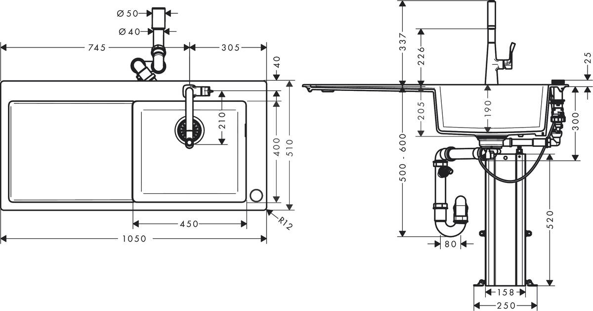
material sink: SilicaTec
number of bowls: 1 main bowl
with drainage
tap hole for drilling is predefined (see scale drawing), diamond drill included
orientation: bowl right
sink depth: 190 mm
cut-out dimensions: 1030 x 490 mm
cabinet size: 60 cm
installation type: topmount
position overflow: on the right side of the bowl
connection type: G ⅜ hose connections
connection dimension: DN15
suitable for continuous flow water heaters
ceramic cartridge
MagFit magnetic shower support
integrated non-return valve
swivel range adjustable in 2 steps to 110° or 150°
laminar spray, shower spray
ComfortZone 220
lockable shower spray, spray returns automatically through handle closing
sBox for quiet, smooth and protected hose guidance in the cabinet, under the countertop
extension length up to 76 cm
push of control unit: intuitive start and stop function of the water flow, turn: automatic drain operation
maximum flow rate at 3 bar: 7 l/min
Download area
Product data sheet (PDF)
We endeavour to always provide up-to-date, complete information on our website. However, we do not assume any liability for the up-to-dateness, accuracy, completeness or suitability of the information for particular uses.
There are currently no entries in your notepad. This list enables you to collate products that you are interested in and find them again quickly at any time. To do this, use the “Note product” icon on our product pages.